六木ハウスⅣ|東京・大阪・神奈川・埼玉・千葉の障害者支援・グループホームの株式会社HAL

大阪本社:06-6224-3021

東京支社:03-3518-0447

一覧に戻る

はるのいえ 六木ハウスⅣgroup home

物件概要property

名称
はるのいえ 六木ハウスⅣ
所在地
東京都足立区六木
最寄駅
亀有駅から東武バス 八潮行
バス停佐野センター徒歩2分
定員
4名
階数
2階建て
築年数
2019/9/1オープンしました
駐車場
1台あり

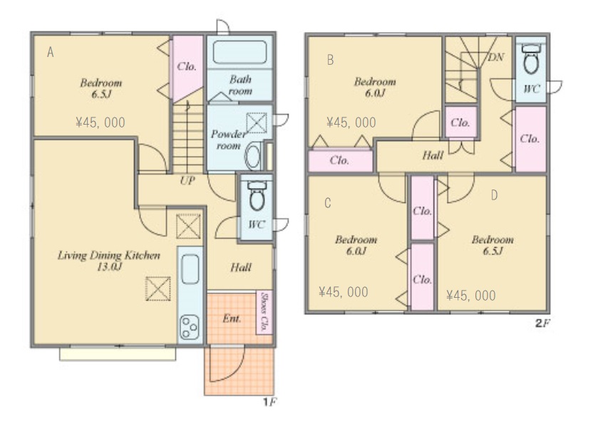
ご利用料金cost

家賃
1階 洋室A ¥43,000  5.5帖
2階 洋室B ¥45,000  6.0帖
2階 洋室C ¥47,000  6.5帖
2階 洋室D ¥45,000  6.0帖
修繕積立金
¥3,000
通信費
¥2,000
食費
¥30,000 ※実費精算につき、差額は次月請求分から相殺されます。
(稼働中のホームの平均は、17,000円~25,000円前後です。)
水道光熱費
¥15,000 実費精算につき、差額は次月請求分から相殺されます。
日用品費
¥5,000 実費精算につき、差額は次月請求分から相殺されます。
一覧に戻る

体験入居 PAGE TOP